Пропонується до продажу однокімнатна квартира у сучасному житловому комплексі «Great (Грейт)» за адресою: вул. Причальна, 8 (будинок 12)
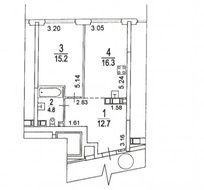
Однокімнатна квартира у житловому комплексі «Great (Грейт)» за адресою: вул. Причальна, 8 (будинок 12), загальна площа оселі становить 49 м.кв.,планування продумане та комфортне: світла кухня-вітальня (16,3 м.кв.) для приготування кулінарних шедеврів та частування близьких, окрема спальня для відпочинку (15,2 м.кв.) і суміжний санвузол. Квартира передається у стані після будівельників, що дає чудову можливість створити інтер’єр повністю на власний смак і реалізувати будь-які дизайнерські рішення. Житловий комплекс створений із урахуванням сучасних стандартів комфорту та безпеки. У будинку працює охорона 24/7, є власне укриття, підземний паркінг, п’ять швидкісних безшумних ліфтів. Для мешканців передбачена власна котельня на даху. Двір комплексу закритий для автомобілів, тож простір біля будинку залишається тихим, затишним і безпечним.На території комплексу вже працює супермаркет «Сільпо», а поруч розташовані магазини, ресторани, кав’ярні, клініки та салони краси, що створює комфортну інфраструктуру для повсякденного життя. Лише за кілька хвилин пішки відкривається мальовнича набережна Дніпра та парк "Прибережний". Поруч також розташований популярний торгово-розважальний центр «River Mall». Локація — супер: до станції метро "Осокорки" близько 10 хвилин на транспорті. Поруч проходять ключові міські магістралі — Дніпровська набережна, вулиця Анни Ахматової, проспекти Петра Григоренка та Миколи Бажана. У безпосередній близькості знаходяться сучасні житлові комплекси: ЖК «Seven», ЖК «Славутич», ЖК «Зарічний», ЖК «Русанівська Гавань» та ЖК «River Stone»
Цена: 72 000 у.о. БЕЗ КОМІСІЇ




